ATUTY:
- Teren ogrodzony
- Centrum Wrzeszcza
- Nieruchomość po gruntownej renowacji
- 73% powierzchni nieruchomości posiada przeznaczenie usługowe, a pozostałość to część mieszkalna
- Prywatny parking na kilkanaście samochodów
- Możliwość montażu windy
DZIAŁKA:
Nieruchomość gruntowa o powierzchni 716 m² + 500m2, posiada regularny, prostokątny kształt. Teren zagospodarowany - ogród przydomowy, zieleń niska, krzewy oraz drzewka ozdobne. Nieruchomość uzbrojona w sieci : elektroenergetyczną, wodociągową, kanalizacji sanitarnej, kanalizacji deszczowej oraz gazu ziemnego. Bezpośredni dostęp do drogi publicznej - ul. Konrada Leczkowa.
BUDYNEK:
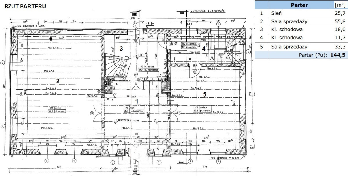
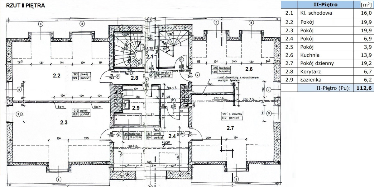
Reprezentacyjny budynek o powierzchni użytkowej 593,6 m² z podziałem na część usługową (431,4 m²) i mieszkalną (162,2 m²), składający się z trzech kondygnacji nadziemnych oraz z pełnego podpiwniczenia. Idealny zarówno do celów biznesowych, jak i mieszkalnych. Wysoki standard wykończenia - dworek całkowicie odrestaurowany w 2005 roku, z nowoczesnymi instalacjami (CO, wodno-kanalizacyjną, elektryczną, wentylacyjną, klimatyzacyjną, teletechniczną oraz domofonową). Obiekt wykonano w tradycyjnej technologii murowanej z cegły, a dach pokryto dachówką ceramiczną.
Dogodna lokalizacja - Położenie w Gdańsku Wrzeszczu, zaledwie 4 km od centrum, w otoczeniu niskiej zabudowy i pełnej infrastruktury miejskiej. 8 minut pieszo do stacji SKM Wrzeszcz.
Doskonała komunikacja - Bliskość głównych arterii komunikacyjnych, przystanków komunikacji miejskiej oraz łatwy dostęp do obwodnicy Trójmiasta.
Zagospodarowany teren - Działka o powierzchni 716 m² + 500m2 z prywatnym parkingiem, ogrodem przydomowym, zielenią niską, krzewami i drzewkami ozdobnymi, stwarzającymi komfortowe warunki do wypoczynku.
Unikalna inwestycja - Połączenie funkcji mieszkalnej z usługową w zabytkowym budynku czyni tę nieruchomość doskonałą lokatą kapitału z potencjałem biznesowym.
Historia budynku sięga XVII wieku, kiedy to w rejonie dzisiejszej ul. Konrada Leczkowa rozwijała się osada Nowe Szkoty. W XVIII wieku na planach miasta widnieje już istniejący dwór, który przez lata pełnił różne funkcje mieszkalne i usługowe. Na przestrzeni XIX i XX wieku budynek był własnością wielu znanych gdańskich rodzin, w tym rodziny Boschke oraz Gustawa Pilitza.
Zapraszam do kontaktu
RAPORT NIERUCHOMOŚCI
Łukasz Ostrowski
Ekspert ds. nieruchomości, nr licencji 27734
tel. 514 227 325
Odnowiony dworek z funkcją mieszkalno - usługową
lokalizacja: Gdańsk, Konrada Leczkowa
6 499 000,00 PLN
10 831,67 PLN
Dane szczegółowe
- Typ transakcji: sprzedaż
- Typ nieruchomości: Komercyjny
- Lokalizacja: Gdańsk Wrzeszcz, Konrada Leczkowa
- Powierzchnia:600 m2
- Liczba pokoi: 8
- Rok budowy: 2005
- Piętro: 0 z 3
-
Powierzchnia działki:
1 216 m2
- Numer oferty: 973948
- Cena: 6 499 000,00 PLN
- Cena za m2: 10 831,67 PLN